Description
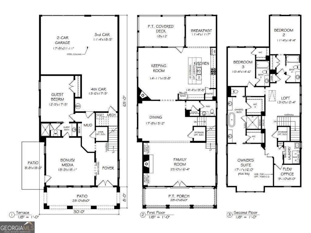
The Burton Plan by JW Collection founded by John Wieland! Bring your golf cart for this 4 car garage. This new plan is a stunning detached home with exquisite John Wieland features. This home has wonderful living space for all your entertaining needs. Large and open with lots of windows! The kitchen has beautiful cabinets that go all the way to the top of the 10' ceilings. And EVERY cabinet in this home is soft close! The island is spacious and comes equipped with a double trash pullout, sink, and dishwasher. Of course, there are lots of beautiful quartz countertops to choose from. You will meet with our JWC designers to personalize the interior of your home. Enjoy the wood shelving in your walk-in pantry. Hardwoods are on the entire main level, loft, owner's bedroom, bonus room and all stairs. Gleaming commercial stainless-steel appliances and tile to the ceiling behind your designer kitchen wood hood. What home would be cozy without a fireplace with gas logs, a fireplace in the kitchen/keeping room, built-in bookcases in the great room. Well, you get that too! The owner's suite is equipped with double walk-in closets, including closet systems, that connect to the owner's bath. You will find a spa experience with a free-standing soaking tub, large shower with bench, shampoo niche, handheld shower attachment, frameless door, and tile all the way to the ceiling. In fact, it does not matter which bath you see, they all have tile to the ceiling, undermount sinks, and quartz countertops. Enter from your oversized garage to a mud room with bench, cubbies, and hooks. The terrace level has a private bonus room with a separate bedroom, full bath and walk in shower. Also, it has a side patio with a fenced side yard. You also have two large, covered porches on the front of the home and one on the back of the home. The main level has a dedicated study, dining room and large open entertaining space! The upper level has the owner's suite, two other bedrooms with their own private baths along with a loft space for the perfect office or reading nook. The home is under construction and should be ready for move in early 2026. Come by the neighborhood anytime for a tour and choose this home or another lot to build. You will meet with the JWC design team to personalize the interior design for the finishes. The amenities are the BEST Woodstock has to offer including a clubhouse with fitness center, 2 dog parks, swimming pool with children's splash pad and cabana, community garden, fire pit, pavilion, playground and the trail that runs through and connects to the Noonday Creek Trail. This is really a location you need to see!!! These homes are selling fast and limited availability. THE PICTURES OF THE HOME IS OF A SIMILAR HOME THAT WAS BUILT IN SOUTH ON MAIN. THE HOME IS CURRENTLY UNDER CONSTRUCTION. Home will be completed early spring.
-
4BEDS
-
0.03ACRES
-
4BATHS
-
11/2 BATHS
School Information
Description
The Burton Plan by JW Collection founded by John Wieland! Bring your golf cart for this 4 car garage. This new plan is a stunning detached home with exquisite John Wieland features. This home has wonderful living space for all your entertaining needs. Large and open with lots of windows! The kitchen has beautiful cabinets that go all the way to the top of the 10' ceilings. And EVERY cabinet in this home is soft close! The island is spacious and comes equipped with a double trash pullout, sink, and dishwasher. Of course, there are lots of beautiful quartz countertops to choose from. You will meet with our JWC designers to personalize the interior of your home. Enjoy the wood shelving in your walk-in pantry. Hardwoods are on the entire main level, loft, owner's bedroom, bonus room and all stairs. Gleaming commercial stainless-steel appliances and tile to the ceiling behind your designer kitchen wood hood. What home would be cozy without a fireplace with gas logs, a fireplace in the kitchen/keeping room, built-in bookcases in the great room. Well, you get that too! The owner's suite is equipped with double walk-in closets, including closet systems, that connect to the owner's bath. You will find a spa experience with a free-standing soaking tub, large shower with bench, shampoo niche, handheld shower attachment, frameless door, and tile all the way to the ceiling. In fact, it does not matter which bath you see, they all have tile to the ceiling, undermount sinks, and quartz countertops. Enter from your oversized garage to a mud room with bench, cubbies, and hooks. The terrace level has a private bonus room with a separate bedroom, full bath and walk in shower. Also, it has a side patio with a fenced side yard. You also have two large, covered porches on the front of the home and one on the back of the home. The main level has a dedicated study, dining room and large open entertaining space! The upper level has the owner's suite, two other bedrooms with their own private baths along with a loft space for the perfect office or reading nook. The home is under construction and should be ready for move in early 2026. Come by the neighborhood anytime for a tour and choose this home or another lot to build. You will meet with the JWC design team to personalize the interior design for the finishes. The amenities are the BEST Woodstock has to offer including a clubhouse with fitness center, 2 dog parks, swimming pool with children's splash pad and cabana, community garden, fire pit, pavilion, playground and the trail that runs through and connects to the Noonday Creek Trail. This is really a location you need to see!!! These homes are selling fast and limited availability. THE PICTURES OF THE HOME IS OF A SIMILAR HOME THAT WAS BUILT IN SOUTH ON MAIN. THE HOME IS CURRENTLY UNDER CONSTRUCTION. Home will be completed early spring.
© 2025 Georgia Multiple Listing Service, Inc. All rights reserved. The data relating to real estate for sale or lease on this web site comes in part from GAMLS. Real estate listings held by brokerage firms other than Rettro Group | Century 21 Novus are marked with the GAMLS logo or an abbreviated logo and detailed information about them includes the name of the listing broker. IDX information is provided exclusively for consumers' personal, non-commercial use and may not be used for any purpose other than to identify prospective properties consumers may be interested in purchasing. Information is deemed reliable but is not guaranteed accurate by GAMLS or Rettro Group | Century 21 Novus. Data last updated: 2025-12-07T00:09:54.883.